SA1113264

Branz Chiyoda Fujimi 1701

1-1-8 Fujimi, Chiyoda, Tokyo

3 | 2 | Apartment

210.89m² (2270ft², 63.79 tsubo)

JPY 1,697,000,000 (negotiable)

Management Fee: JPY 158,600 / month

Repair Reserve Fund: JPY 42,200 / month

Sale Status: Enquire for details

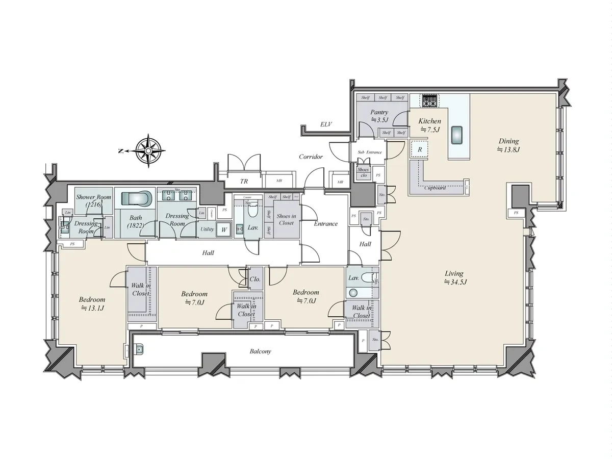
Floorplan

Note: actual layout may differ slightly from this floorplan.

cover-photo

Details

Price / m²
¥8,046,849
Parking
1 included
Pets
-
Structure
Reinforced Concrete
Land Size
2792.34m² / 30056.47ft² / 844.68 tsubo
Land Right
Freehold
Year Built
2024
Total Floors
18

Transportation

  • Kudanshita Station
    • Tokyo Metro Tozai Line (5 min.)
    • Tokyo Metro Hanzomon Line (5 min.)
    • Toei Shinjuku Line (5 min.)
  • Iidabashi Station
    • JR Sobu Line (7 min.)
    • Tokyo Metro Tozai Line (7 min.)
    • Tokyo Metro Yurakucho Line (9 min.)
    • Tokyo Metro Namboku Line (9 min.)
  • Suidobashi Station
    • JR Sobu Line (9 min.)

Features

  • kitchen
  • hot water
  • lighting fixtures
  • flooring
  • cooking stove
  • heated flooring
  • dishwasher
  • brand new inside
  • large balcony
  • aircon
  • security system
  • video intercom