SA1114342

City Tower Azabujuban 37F-38F

1-6-3 Mita, Minato, Tokyo

1 | 1 | Apartment

152.04m² (1636.54ft², 45.99 tsubo)

JPY 1,500,000,000

Management Fee: JPY 41,153 / month

Repair Reserve Fund: JPY 38,100 / month

Sale Status: Enquire for details

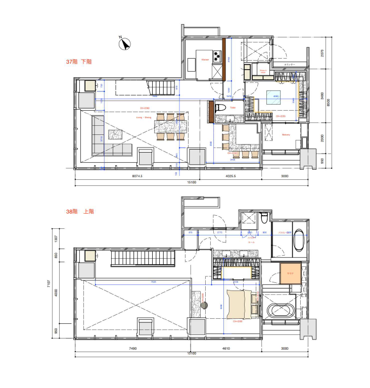
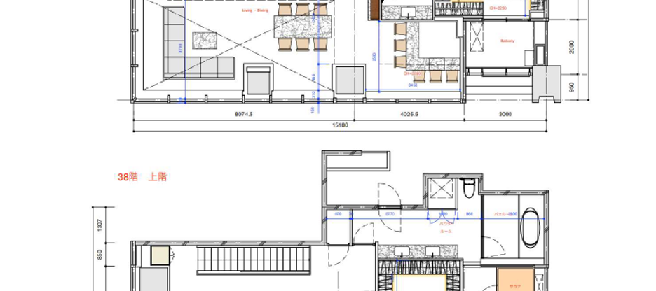
Floorplan

Note: actual layout may differ slightly from this floorplan.

cover-photo
entrance
lobby

Details

Price / m²
¥9,865,825
Parking
Pets
-
Structure
Reinforced Concrete
Land Size
6906.38m² / 74339.58ft² / 2089.17 tsubo
Land Right
Freehold
Year Built
2009
Total Floors
38

Transportation

  • AzabuJuban Station
    • Tokyo Metro Namboku Line (5 min.)
    • Toei Oedo Line (6 min.)
  • Akabanebashi Station
    • Toei Oedo Line (5 min.)
  • ShibaKoen Station
    • Toei Mita Line (11 min.)
  • Mita Station
    • Toei Asakusa Line (13 min.)
    • Toei Mita Line (13 min.)
  • Kamiyacho Station
    • Tokyo Metro Hibiya Line (14 min.)
  • Tamachi Station
    • JR Yamanote Line (15 min.)

Features

  • kitchen
  • hot water
  • lighting fixtures
  • curtains
  • cooking stove
  • recently renovated
  • dishwasher
  • aircon
  • security system
  • video intercom
  • corner room
  • toilet