SA1114155

City Tower Meguro 21F

3-19-18 NishiGotanda, Shinagawa, Tokyo

1 | 1 | Apartment

41.26m² (444.12ft², 12.48 tsubo)

JPY 121,500,000

Management Fee: JPY 13,067 / month

Repair Reserve Fund: JPY 8,700 / month

Sale Status: Enquire for details

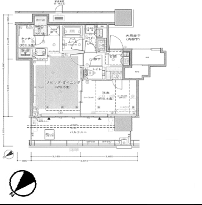
Floorplan

Note: actual layout may differ slightly from this floorplan.

building

Details

Price / m²
¥2,944,741
Parking
Pets
Negotiable
Structure
Reinforced Concrete
Land Right
Freehold
Year Built
2017
Total Floors
25

Transportation

  • Fudomae Station
    • Tokyu Meguro Line (4 min.)
  • Gotanda Station
    • JR Yamanote Line (10 min.)
    • Tokyu Ikegami Line (10 min.)
  • Meguro Station
    • JR Yamanote Line (10 min.)
    • Tokyu Meguro Line (10 min.)
    • Tokyo Metro Namboku Line (10 min.)
    • Toei Mita Line (10 min.)

Features

  • kitchen
  • hot water
  • lighting fixtures
  • flooring
  • cooking stove
  • toilet
  • washlet
  • separate bath toilet
  • shower
  • bathroom dryer
  • pets
  • gym