SA1114588

GS Heim MinamiAoyama 4F

7-5-14 MinamiAoyama, Minato, Tokyo

4 | 1 | Apartment

189.51m² (2039.87ft², 57.33 tsubo)

JPY 449,900,000

Management Fee: JPY 66,600 / month

Repair Reserve Fund: JPY 76,560 / month

Sale Status: For Sale

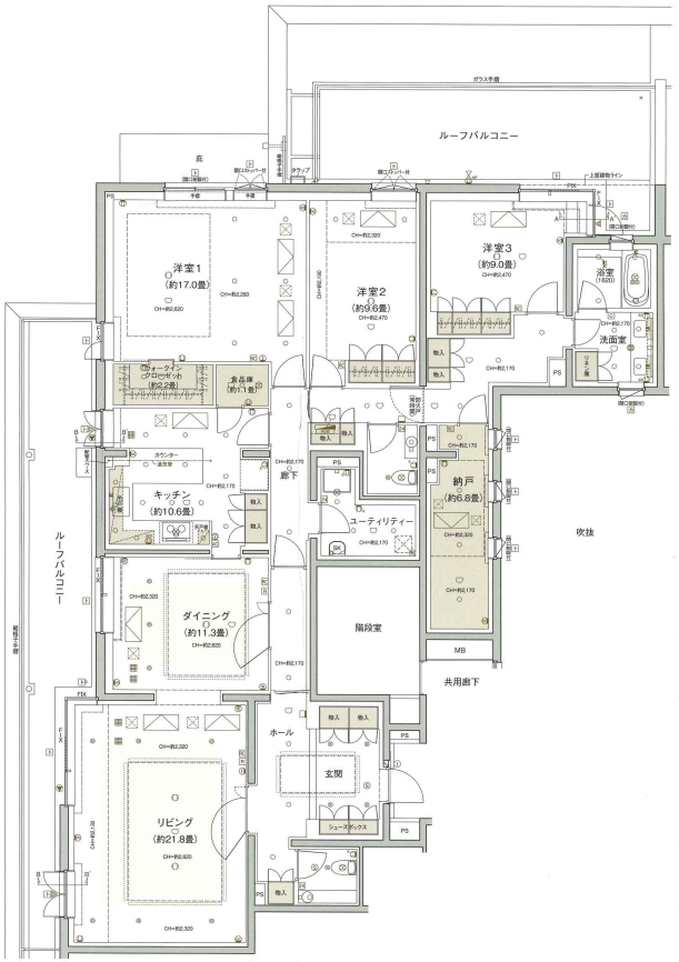
Floorplan

Note: actual layout may differ slightly from this floorplan.

building

Details

Price / m²
¥2,374,017
Parking
Pets
-
Structure
Reinforced Concrete
Land Size
577.48m² / 6215.94ft² / 174.69 tsubo
Land Right
Freehold
Year Built
1978
Total Floors
6

Transportation

  • Omotesando Station
    • Tokyo Metro Ginza Line (12 min.)
    • Tokyo Metro Chiyoda Line (12 min.)
    • Tokyo Metro Hanzomon Line (12 min.)
  • Hiroo Station
    • Tokyo Metro Hibiya Line (15 min.)
  • Shibuya Station
    • JR Yamanote Line (18 min.)
    • JR Saikyo Line (18 min.)
    • JR Narita Express (18 min.)
  • Ebisu Station
    • JR Saikyo Line (18 min.)

Features