SA1113892

Initia Cloud Shibuya Sasazuka 4F

3-72-5 Hatagaya, Shibuya, Tokyo

3 | 1 | Apartment

75.07m² (808.05ft², 22.71 tsubo)

JPY 119,800,000

Management Fee: JPY 14,500 / month

Repair Reserve Fund: JPY 11,100 / month

Sale Status: Enquire for details

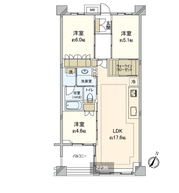
Floorplan

Note: actual layout may differ slightly from this floorplan.

building

Details

Price / m²
¥1,595,844
Parking
Pets
Negotiable
Structure
Reinforced Concrete
Land Right
Freehold
Year Built
2017
Total Floors
5

Transportation

  • Hatagaya Station
    • (10 min.)
  • Sasazuka Station
    • Keio Line (12 min.)
    • (12 min.)
  • Nakano-fujimicho Station
    • Tokyo Metro Marunouchi Line (15 min.)
  • Nakano-shimbashi Station
    • Tokyo Metro Marunouchi Line (17 min.)
  • Hatsudai Station
    • (18 min.)
  • Honancho Station
    • Tokyo Metro Marunouchi Line (18 min.)
  • Daitabashi Station
    • Keio Line (20 min.)

Features

  • kitchen
  • hot water
  • flooring
  • cooking stove
  • heated flooring
  • recently renovated
  • aircon
  • open kitchen
  • security system
  • video intercom
  • pets