Skip to main content

MitaTsunamachi Park Mansion 906

JPY 448,000,000

Exchange rate data accurate as of 2026-02-13 00:00:03.
Apartment 4 1 126.99m²

Perched on the 9th floor, this elegant 2LDK+WIC apartment offers both space and sophistication in one of Tokyo’s most desirable neighborhoods. With a generous 126.99 square meters, the residence is designed to provide comfort and flexibility, featuring two spacious bedrooms, a bright living/dining area, and a large walk-in closet for ample storage. Located just 9 minutes from Azabujuban Station, the property combines easy access to central Tokyo with the charm of a refined residential district known for its international atmosphere, boutique shops, and gourmet dining. The modern open-plan kitchen is ideal for entertaining, while floor-to-ceiling windows bring in natural light, enhancing the sense of openness. Each room has been thoughtfully designed to balance privacy and functionality, making it suitable for families, couples, or professionals. With its rare combination of size, location, and luxury, this apartment represents an exceptional opportunity for premium urban living in Tokyo.

Features

Property feature: corner room

Corner Room

Property feature: pets

Pets

Property feature: recently renovated

Recently Renovated

Property feature: security system

Security System

Other features include:

Kitchen, Hot Water, Carpeting, Cooking Stove, Small Balcony, Separate Bath Toilet, Shower, Bathroom Dryer, Parking, Storage

Property Information

Sale Status
Enquire for details
Price / m²
¥3,527,837
Repair Reserve Fund
JPY 40,000 / month
Management Fee
JPY 58,000 / month
Parking
Available; JPY 20,000 / month ~ JPY 28,000 / month
Pets
Negotiable
Land Size
8370.63 m² / 90100.62 ft² / 2532.1 tsubo
Land Right
Freehold
Zoning
Category 1 low-rise exclusive residential zoning
Year Built
1971
Total Units
147
Floor No
9
Total Floors
19 storeys
Balcony Size
22.4 m²

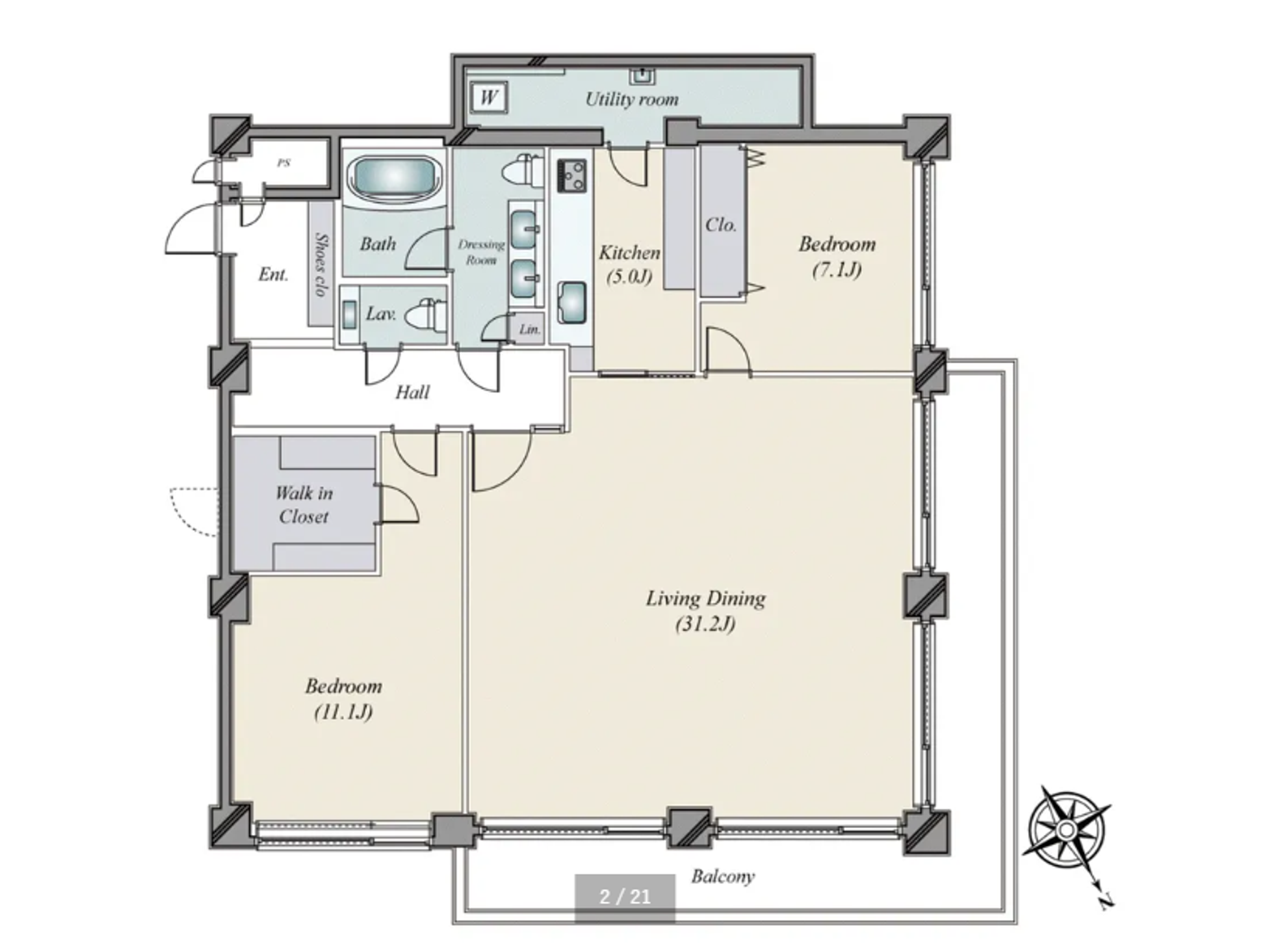
Floor Plan

Floorplan

Note: actual layout may differ slightly from this floorplan.

Location

2-3-34 Mita, Minato, Tokyo

Access

AzabuJuban Station

  • Tokyo Metro Namboku Line Tokyo Metro Namboku Line (9 min.)

Mita Station

  • Toei Mita Line Toei Mita Line (10 min.)

Request Information

* Required

Inquire Now

CLOSE

BACK

MitaTsunamachi Park Mansion - living-dining
MitaTsunamachi Park Mansion - bedroom
MitaTsunamachi Park Mansion - bedroom
MitaTsunamachi Park Mansion - kitchen
MitaTsunamachi Park Mansion - kitchen
MitaTsunamachi Park Mansion - powder-room
MitaTsunamachi Park Mansion - powder-room
MitaTsunamachi Park Mansion - bathroom
MitaTsunamachi Park Mansion - hallway
MitaTsunamachi Park Mansion - hallway
MitaTsunamachi Park Mansion - storage
MitaTsunamachi Park Mansion - view