SA1113281

Sunwood Mita Parkside Tower 24F

1-3-24 Mita, Minato, Tokyo

3 | 1 | Apartment

134.54m² (1448.18ft², 40.7 tsubo)

JPY 799,900,000

Management Fee: JPY 35,000 / month

Repair Reserve Fund: JPY 63,900 / month

Sale Status: Enquire for details

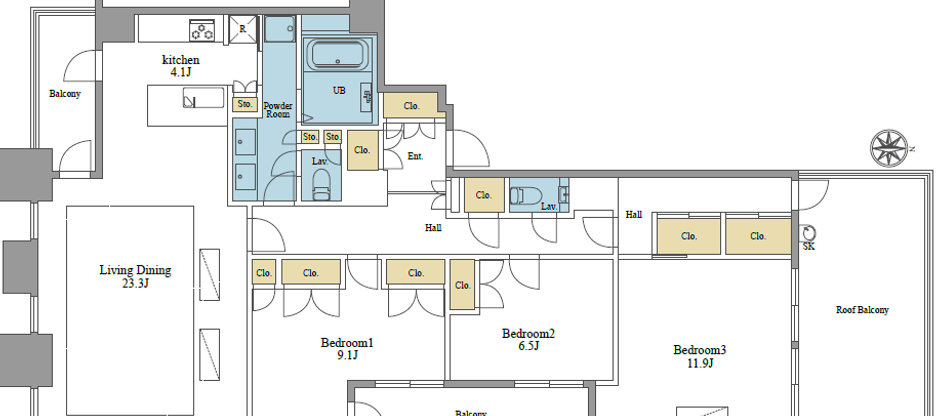
Floorplan

Note: actual layout may differ slightly from this floorplan.

        
    
building

Details

Price / m²
¥5,945,444
Parking
Available
Pets
Negotiable
Structure
Reinforced Concrete
Land Size
948.62m² / 10210.85ft² / 286.96 tsubo
Land Right
Freehold
Year Built
2005
Total Floors
25

Transportation

  • Akabanebashi Station
    • Toei Oedo Line (2 min.)
  • AzabuJuban Station
    • Tokyo Metro Namboku Line (8 min.)

Features

  • flooring
  • heated flooring
  • recently renovated
  • dishwasher
  • brand new inside
  • rooftop balcony
  • aircon
  • security system
  • video intercom
  • bathroom dryer
  • disposer
  • pets