Skip to main content

Hiroo Maple Palace

JPY 2,500,000,000

Exchange rate data accurate as of 2026-05-17 00:00:04.
493.82m²

Prime low-rise residential location between Hiroo and Ebisu.
A rare opportunity to acquire a vacant reinforced concrete building on an expansive approx. 98 tsubo site.

Flexible Use Options
This property offers significant upside and flexibility:
• Retain the existing structure and renovate for personal residence
• Live in part of the building while leasing the remaining floors for rental income
• Reposition the asset as a boutique rental targeting expatriate tenants
The first and second floors feature primary bedrooms with en-suite layouts, making them attractive for international residents.
On-site parking is available, a valuable feature for families or car owners.
The third floor includes an open rooftop balcony, providing additional outdoor living space rarely found in central Tokyo.

Redevelopment Opportunity
Alternatively, the existing structure may be demolished to construct:
• A custom private residence
• A new investment-grade residential building
Although situated within a low-rise residential zoning area, the site benefits from road access not only on the southeast side but also from sufficient road width on the west side, enhancing openness and site versatility.

Property Information

Sale Status
For Sale
Price / m²
¥5,062,573
Road 1
Public, South-East, 5.4m
Bldg-to-Land-Ratio
50%
Floor-space-Ratio
150%
Land Size
326.14 m² / 3510.54 ft² / 98.66 tsubo
Land Right
Freehold
Zoning
Category 1 low-rise exclusive residential zoning
Building Size
493.82 m² / 5315.43 ft² / 149.38 tsubo
Structure
Reinforced Concrete
Year Built
1988
Total Units
3
Total Floors
3 storeys
Building Contains

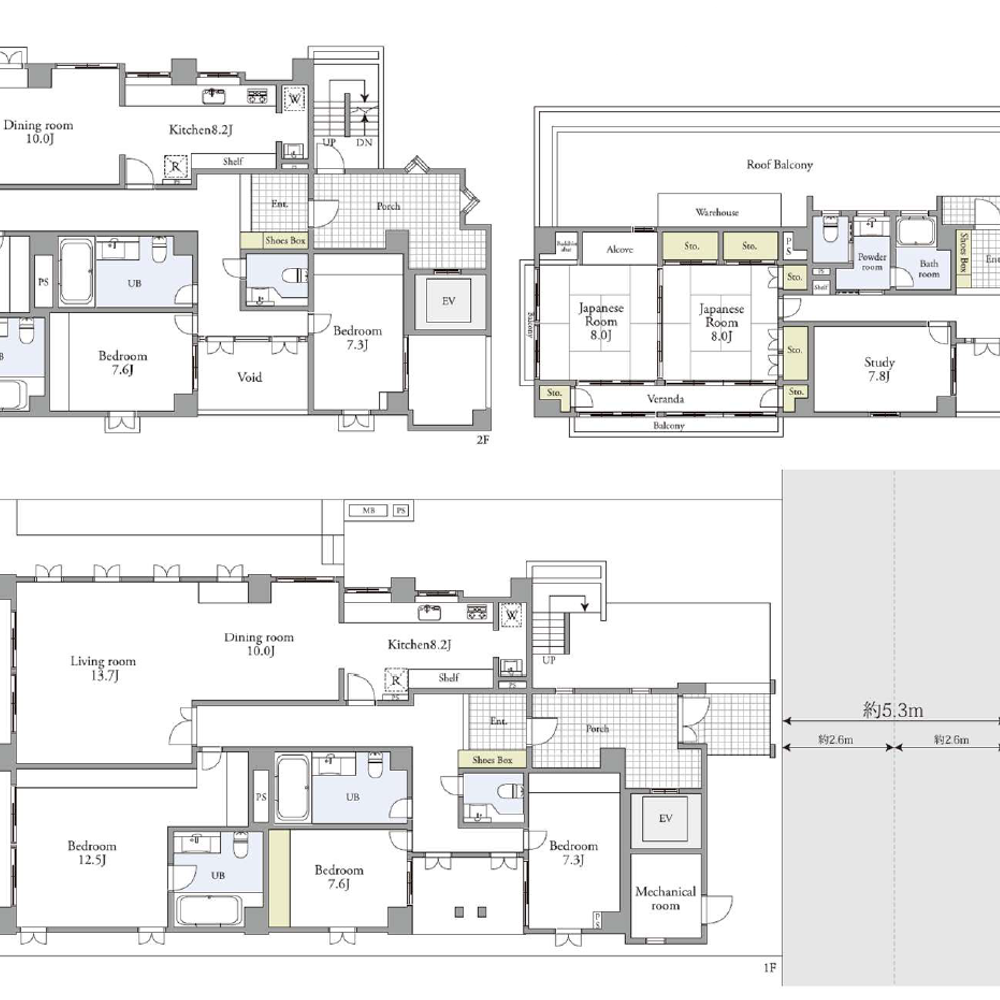
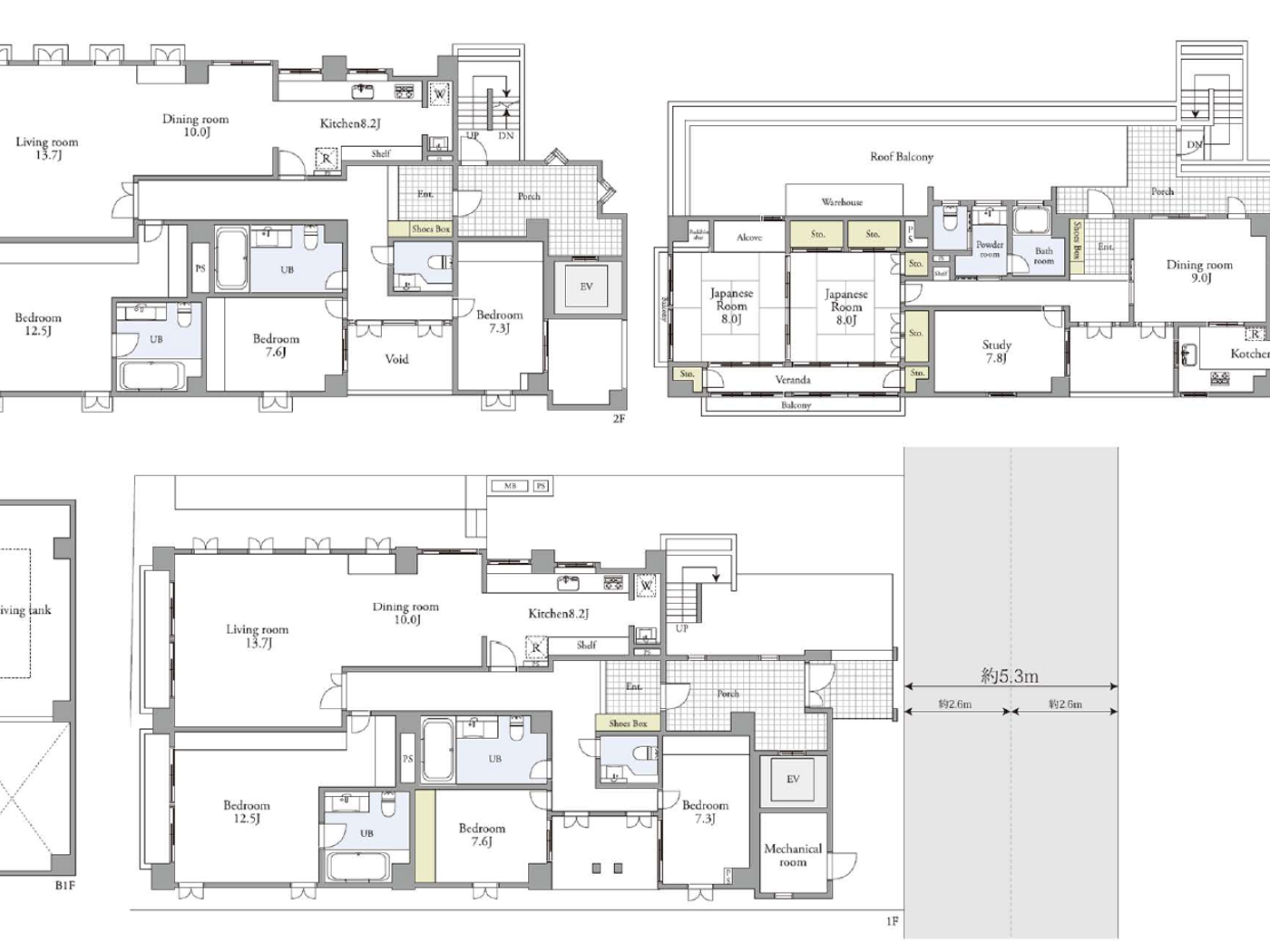
Floor Plan

Floorplan

Note: actual layout may differ slightly from this floorplan.

Location

2-10-5 Hiroo, Shibuya, Tokyo

Access

Hiroo Station

  • Tokyo Metro Hibiya Line Tokyo Metro Hibiya Line (11 min.)

Ebisu Station

  • JR Yamanote Line JR Yamanote Line (14 min.)
  • JR Saikyo Line JR Saikyo Line (14 min.)
  • JR Shonan-Shinjuku Line JR Shonan-Shinjuku Line (14 min.)
  • Tokyo Metro Hibiya Line Tokyo Metro Hibiya Line (14 min.)

Daikanyama Station

  • Tokyu Toyoko Line Tokyu Toyoko Line (16 min.)

Shibuya Station

  • Tokyu Denentoshi Line Tokyu Denentoshi Line (19 min.)
  • Tokyu Toyoko Line Tokyu Toyoko Line (20 min.)
  • Tokyo Metro Fukutoshin Line Tokyo Metro Fukutoshin Line (20 min.)
  • JR Yamanote Line JR Yamanote Line (21 min.)
  • JR Saikyo Line JR Saikyo Line (21 min.)
  • JR Narita Express JR Narita Express (21 min.)
  • JR Shonan-Shinjuku Line JR Shonan-Shinjuku Line (21 min.)
  • Keio Inokashira Line Keio Inokashira Line (21 min.)
  • Tokyo Metro Ginza Line Tokyo Metro Ginza Line (21 min.)

Request Information

* Required

Inquire Now

CLOSE

BACK

Hiroo Maple Palace - building
Hiroo Maple Palace
Hiroo Maple Palace
Hiroo Maple Palace
Hiroo Maple Palace