Skip to main content

Atlas Azabujuban 11F

JPY 269,800,000

Exchange rate data accurate as of 2026-05-23 00:00:04.
Apartment 2 1 63.95m²

■Atlas Azabu Juban 2LDK Corner Residence■

●New Unoccupied Unit with Tokyo Tower Views in Mita, Minato

Welcome to Atlas Azabu Juban, a newly built and unoccupied residence located in the fast-developing Mita 1-chome area of Minato Ward. This premium 2LDK corner unit spans 63.95 square meters and is designed to maximize natural light through three exposures, while offering stunning Tokyo Tower views.

The property is ideally situated just 4 minutes on foot from Tokyo Metro Namboku Line Azabu Juban Station and 6 minutes from Akabanebashi Station, providing exceptional connectivity to central Tokyo. The area is known for its peaceful residential atmosphere, high walkability, and easy access to supermarkets, hospitals, and schools.

●Key Features

・3-sided corner unit with excellent sunlight and ventilation
・Inner corridor design with floor-specific garbage stations for added convenience
・Pet-friendly building (with rules)
・High-floor unit with panoramic Tokyo city and tower views
・Modern system kitchen, built-in dishwasher, water purifier, and counter layout
・Bathroom dryer, high-performance toilet, and smart key system
・Walk-in closet and shoe-in closet for ample storage
・Floor heating and full wooden flooring throughout the home
・High-speed internet and BS/CS/CATV ready
・Shared amenities include elevator, delivery lockers, bicycle and motorcycle parking
・Estimated delivery after December 2025, with possibility for year-end handover

●Exceptional Urban Convenience

This property offers access to multiple train lines, supermarkets, general hospitals, and elementary schools all within a 10-minute walk. Located in a quiet yet central neighborhood, Atlas Azabu Juban combines sophisticated modern living with unmatched accessibility.

Features

Property feature: corner room

Corner Room

Property feature: dishwasher

Dishwasher

Property feature: heated flooring

Heated Flooring

Property feature: security system

Security System

Other features include:

Kitchen, Hot Water, Lighting Fixtures, Flooring, Cooking Stove, Brand New Inside, Aircon, Open Kitchen, Video Intercom, Toilet, Washlet, Separate Bath Toilet, Shower, Independent Wash Basin, Bathroom Dryer, Water Purifier

Property Information

Sale Status
For Sale
Price / m²
¥4,218,921
Repair Reserve Fund
JPY 8,630 / month
Management Fee
JPY 32,520 / month
Land Right
Freehold
Zoning
Category 2 residential zoning
Structure
Reinforced Concrete
Year Built
2025
Total Units
44
Floor No
11
Total Floors
12 storeys
Balcony Size
9.78 m²

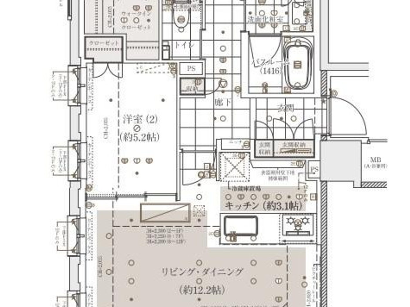
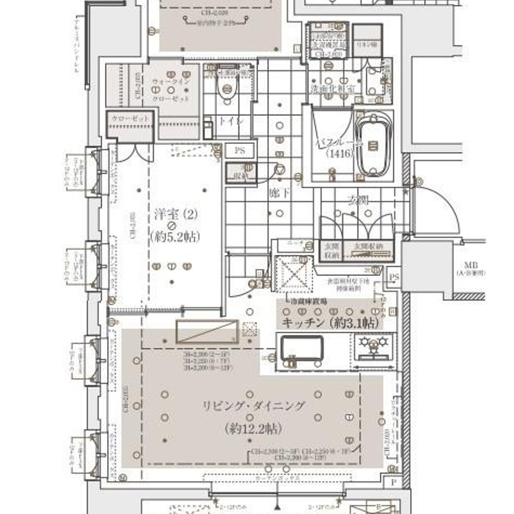
Floor Plan

Floorplan

Note: actual layout may differ slightly from this floorplan.

Location

1-1-6 Mita, Minato, Tokyo

Access

Akabanebashi Station

  • Toei Oedo Line Toei Oedo Line (3 min.)

AzabuJuban Station

  • Tokyo Metro Namboku Line Tokyo Metro Namboku Line (6 min.)
  • Toei Oedo Line Toei Oedo Line (8 min.)

ShibaKoen Station

  • Toei Mita Line Toei Mita Line (10 min.)

Mita Station

  • Toei Asakusa Line Toei Asakusa Line (12 min.)
  • Toei Mita Line Toei Mita Line (12 min.)

Tamachi Station

  • JR Yamanote Line JR Yamanote Line (14 min.)
  • JR Keihin Tohoku Line JR Keihin Tohoku Line (14 min.)

Kamiyacho Station

  • Tokyo Metro Hibiya Line Tokyo Metro Hibiya Line (14 min.)

Daimon Station

  • Toei Oedo Line Toei Oedo Line (16 min.)
  • Toei Asakusa Line Toei Asakusa Line (16 min.)

Onarimon Station

  • Toei Mita Line Toei Mita Line (16 min.)

Roppongi-itchome Station

  • Tokyo Metro Namboku Line Tokyo Metro Namboku Line (18 min.)

Shirokane-takanawa Station

  • Tokyo Metro Namboku Line Tokyo Metro Namboku Line (18 min.)

Hamamatsucho Station

  • Tokyo Monorail Tokyo Monorail (18 min.)

Request Information

* Required

Inquire Now

CLOSE

BACK

Atlas Azabujuban - cover-photo
Atlas Azabujuban
Atlas Azabujuban
Atlas Azabujuban
Atlas Azabujuban
Atlas Azabujuban
Atlas Azabujuban
Atlas Azabujuban
Atlas Azabujuban
Atlas Azabujuban
Atlas Azabujuban
Atlas Azabujuban
Atlas Azabujuban - building
Atlas Azabujuban - building