Skip to main content

City Coat Yoyogi 415

JPY 199,900,000

Exchange rate data accurate as of 2026-05-21 00:00:04.
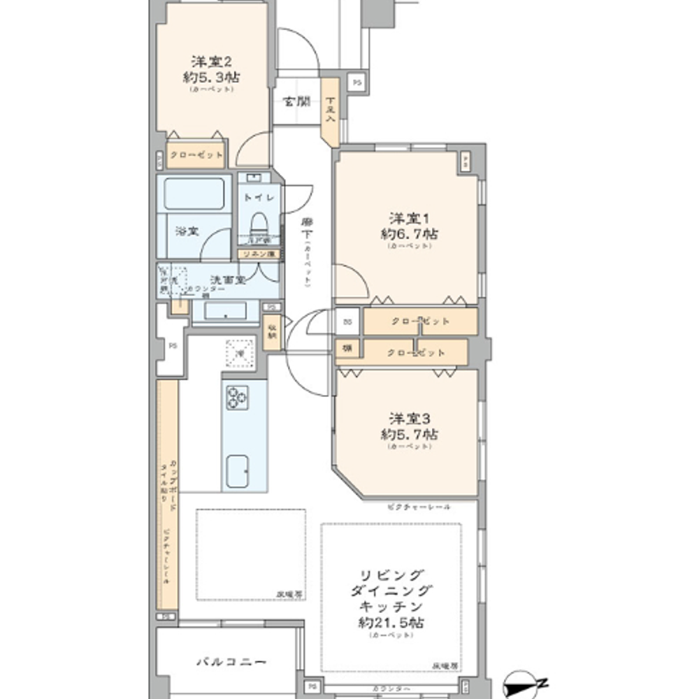
Apartment 3 1 92.31m²

■City Court Yoyogi 415 Top Floor Corner Residence in Yoyogi 5 Chome■

●Prime Yoyogi Location Near Yoyogi Park

City Court Yoyogi 415 is ideally positioned in the sought after Yoyogi 5 chome address, offering a quiet residential setting while remaining close to central Tokyo. The property is within approximately 9 minutes walking distance to the west gate of Yoyogi Park, providing easy access to greenery, jogging paths, and open space in the heart of the city.

●Low Rise Residence with Garden Courtyard

This well maintained low rise residence features a spacious site plan with a landscaped inner courtyard, creating a sense of openness and privacy rarely found in Tokyo. Originally developed by Mitsui Fudosan, the building reflects quality construction and thoughtful design. A large scale common area renovation was completed in 2015, ensuring long term upkeep and appeal.

●Top Floor Corner Unit with Excellent Natural Light

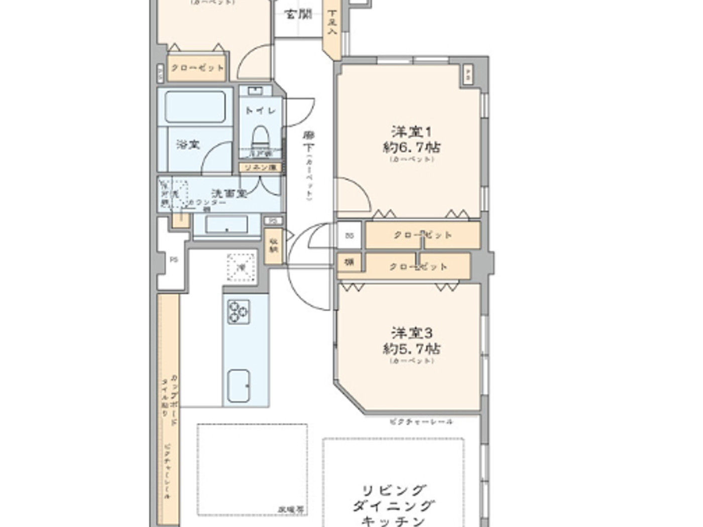
Located on the top fourth floor, this three sided corner unit enjoys abundant natural light and pleasant views. The layout offers excellent ventilation and a bright, airy living environment. The building also provides both a main west side entrance and a convenient sub entrance on the east side.

Fully Renovated Interior Completed in August 2025

The interior has been newly renovated to a high standard, combining modern comfort with refined finishes.

Renovation highlights
New carpet flooring throughout
Replacement of hot water piping within the private area
New doors and entrance storage cabinetry
Custom Tanaka Kougei vanity unit
New TOTO toilet with washlet
New LIXIL unit bath with ventilation and drying system
New Tanaka Kougei system kitchen with dishwasher
New water heater with reheating function
New wall and ceiling coverings
Newly installed lighting fixtures
Five new air conditioning units
Newly installed floor heating in the living and dining area
Ideal Tokyo Residence or Investment Opportunity

This property offers a rare combination of location, quality, and modern upgrades in one of Tokyo’s most desirable residential neighborhoods. It is well suited for both owner occupiers and investors seeking long term value.

Features

Property feature: corner room

Corner Room

Property feature: dishwasher

Dishwasher

Property feature: heated flooring

Heated Flooring

Property feature: recently renovated

Recently Renovated

Other features include:

Kitchen, Hot Water, Flooring, Aircon, Video Intercom

Property Information

Sale Status
Enquire for details
Price / m²
¥2,165,529
Repair Reserve Fund
JPY 28,250 / month
Management Fee
JPY 27,500 / month
Land Right
Freehold
Zoning
Category 1 low-rise exclusive residential zoning
Structure
Reinforced Concrete
Year Built
1992
Total Units
69
Floor No
5
Total Floors
4 storeys
Balcony Size
2.6 m²

Floor Plan

Floorplan

Note: actual layout may differ slightly from this floorplan.

Location

5-31-5 Yoyogi, Shibuya, Tokyo

Access

Yoyogi-hachiman Station

  • Odakyu Line Odakyu Line (8 min.)

Request Information

* Required

Inquire Now

CLOSE

BACK

City Coat Yoyogi - building
City Coat Yoyogi
City Coat Yoyogi
City Coat Yoyogi
City Coat Yoyogi
City Coat Yoyogi
City Coat Yoyogi
City Coat Yoyogi
City Coat Yoyogi
City Coat Yoyogi
City Coat Yoyogi
City Coat Yoyogi
City Coat Yoyogi
City Coat Yoyogi
City Coat Yoyogi
City Coat Yoyogi
City Coat Yoyogi
City Coat Yoyogi
City Coat Yoyogi
City Coat Yoyogi
City Coat Yoyogi
City Coat Yoyogi
City Coat Yoyogi
City Coat Yoyogi