Skip to main content

J Park Shibuya Higashi 204

JPY 179,800,000

Exchange rate data accurate as of 2026-05-21 00:00:04.
Apartment 2 1 70.3m²

■J Park Shibuya Higashi Spacious 2LDK Corner Residence with Flexible Layout■

Refined Urban Living Between Shibuya Ebisu and Daikanyama

J Park Shibuya Higashi offers a rare opportunity to enjoy a peaceful residential setting while staying connected to three of Tokyo’s most জনপ্র vibrant neighborhoods. Shibuya Ebisu and Daikanyama are all within easy reach, delivering a lifestyle that blends convenience, culture, and tranquility.

Bright South East Facing Corner Unit with Over 70 sqm

This well proportioned 2LDK corner residence spans over 70 sqm and benefits from a desirable south east orientation. Large windows on multiple sides invite natural light throughout the day while maintaining excellent ventilation. The clean rectangular layout maximizes usable space and enhances everyday comfort.

Flexible Layout with Movable Partition Design

A standout feature of this home is its movable partition system, allowing you to freely open or close spaces depending on your needs. The design centers around the LDK, creating a seamless flow between living, dining, and additional rooms. Whether for remote work, entertaining, or relaxing, the layout adapts effortlessly to your lifestyle.

Modern Renovation and High-Quality Features
The unit has been renovated to offer modern comfort and functionality. The open style system kitchen includes a dishwasher and water purifier, making daily living efficient and enjoyable. Additional features include underfloor heating, a bathroom dryer, and a washlet toilet.
All rooms feature wooden flooring, and thoughtful upgrades such as a TV monitor intercom add convenience and security.

Comfortable Living with Excellent Building Amenities

Residents benefit from elevator access, a delivery box system, and bicycle parking. The corner unit positioning enhances privacy and airflow, while the pet friendly policy allows for flexible living options.

Ideal for Families and Professionals

With an elementary school within a 10 minute walk, this property is well suited for families. At the same time, its proximity to central Tokyo hubs makes it ideal for professionals seeking both accessibility and a calm home environment.

Features

Property feature: dishwasher

Dishwasher

Property feature: pets

Pets

Property feature: recently renovated

Recently Renovated

Other features include:

Kitchen, Hot Water, Lighting Fixtures, Flooring, Cooking Stove, Small Balcony, Aircon, Open Kitchen, Video Intercom, Toilet, Separate Bath Toilet, Shower, Independent Wash Basin, Bathroom Dryer, Water Purifier, Parking

Property Information

Sale Status
Enquire for details
Price / m²
¥2,557,610
Repair Reserve Fund
JPY 28,120 / month
Management Fee
JPY 15,800 / month
Parking
Available; JPY 36,000 / month ~ JPY 40,000 / month
Pets
Negotiable
Land Right
Freehold
Zoning
Category 1 low-rise exclusive residential zoning
Structure
Composite Steel & Reinforced Concrete
Year Built
1999
Total Units
27
Floor No
2
Total Floors
6 storeys
Balcony Size
4.12 m²

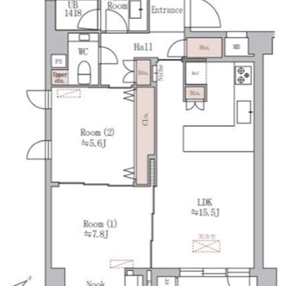
Floor Plan

Floorplan

Note: actual layout may differ slightly from this floorplan.

Location

1-19-2 Higashi, Shibuya, Tokyo

Access

Shibuya Station

  • Tokyu Toyoko Line Tokyu Toyoko Line (9 min.)
  • Tokyu Denentoshi Line Tokyu Denentoshi Line (9 min.)
  • Tokyo Metro Fukutoshin Line Tokyo Metro Fukutoshin Line (10 min.)
  • JR Yamanote Line JR Yamanote Line (11 min.)
  • JR Saikyo Line JR Saikyo Line (11 min.)
  • JR Narita Express JR Narita Express (11 min.)
  • Keio Inokashira Line Keio Inokashira Line (11 min.)
  • Tokyo Metro Ginza Line Tokyo Metro Ginza Line (11 min.)
  • Tokyo Metro Hanzomon Line Tokyo Metro Hanzomon Line (11 min.)

Ebisu Station

  • Tokyo Metro Hibiya Line Tokyo Metro Hibiya Line (11 min.)

Request Information

* Required

Inquire Now

CLOSE

BACK

J Park Shibuya Higashi - cover-photo
J Park Shibuya Higashi
J Park Shibuya Higashi
J Park Shibuya Higashi
J Park Shibuya Higashi
J Park Shibuya Higashi
J Park Shibuya Higashi
J Park Shibuya Higashi
J Park Shibuya Higashi
J Park Shibuya Higashi
J Park Shibuya Higashi
J Park Shibuya Higashi
J Park Shibuya Higashi
J Park Shibuya Higashi