Skip to main content

Atlas Azabudai 1001

JPY 419,990,000

Exchange rate data accurate as of 2026-05-30 00:00:04.
Apartment 2 1 88.67m²

New Luxury Residence in Azabudai Atlas Azabudai 2025

Discover a newly built premium residence in the heart of Azabudai completed in September 2025. This tenth floor southwest corner home offers an elegant living experience with panoramic views of Tokyo Tower and Roppongi Hills. Its refined layout and high quality specifications create a calm and sophisticated urban retreat.

Property Overview

● Tenth floor residence
● Two bedroom layout with N WIC STC and SIC
● Spacious 88.67 sqm corner unit facing southwest
● Exceptional Tokyo Tower and Roppongi Hills skyline view
● Newly built in 2025 with premium finishes throughout

Key Features of the Home

This residence offers an intelligent floor plan designed for comfort and everyday practicality. The generous living and dining area welcomes abundant natural light, while the private quarters are positioned for a sense of quiet and separation. Ample storage solutions including a walk in closet, shoe-in closet and storage closet enhance the usability of the home.

Prime Azabudai Location

Azabudai is one of central Tokyo’s most desirable residential neighborhoods, offering a balance of greenery, refined living, and excellent access to business and entertainment districts. The property’s elevated position allows for dynamic city views both day and night.

Features

Property feature: corner room

Corner Room

Property feature: dishwasher

Dishwasher

Property feature: heated flooring

Heated Flooring

Property feature: pets

Pets

Property feature: security system

Security System

Other features include:

Kitchen, Hot Water, Lighting Fixtures, Flooring, Cooking Stove, Brand New Inside, Aircon, Video Intercom, Toilet, Washlet, Separate Bath Toilet, Shower, Independent Wash Basin, Bathroom Dryer, Parking

Property Information

Sale Status
Enquire for details
Price / m²
¥4,736,551
Repair Reserve Fund
JPY 11,970 / month
Management Fee
JPY 50,370 / month
Parking
Available
Pets
Negotiable
Land Right
Freehold
Usage
Residential
Structure
Reinforced Concrete
Year Built
2025
Total Units
34
Floor No
10
Total Floors
17 storeys
Balcony Size
5.05 m²

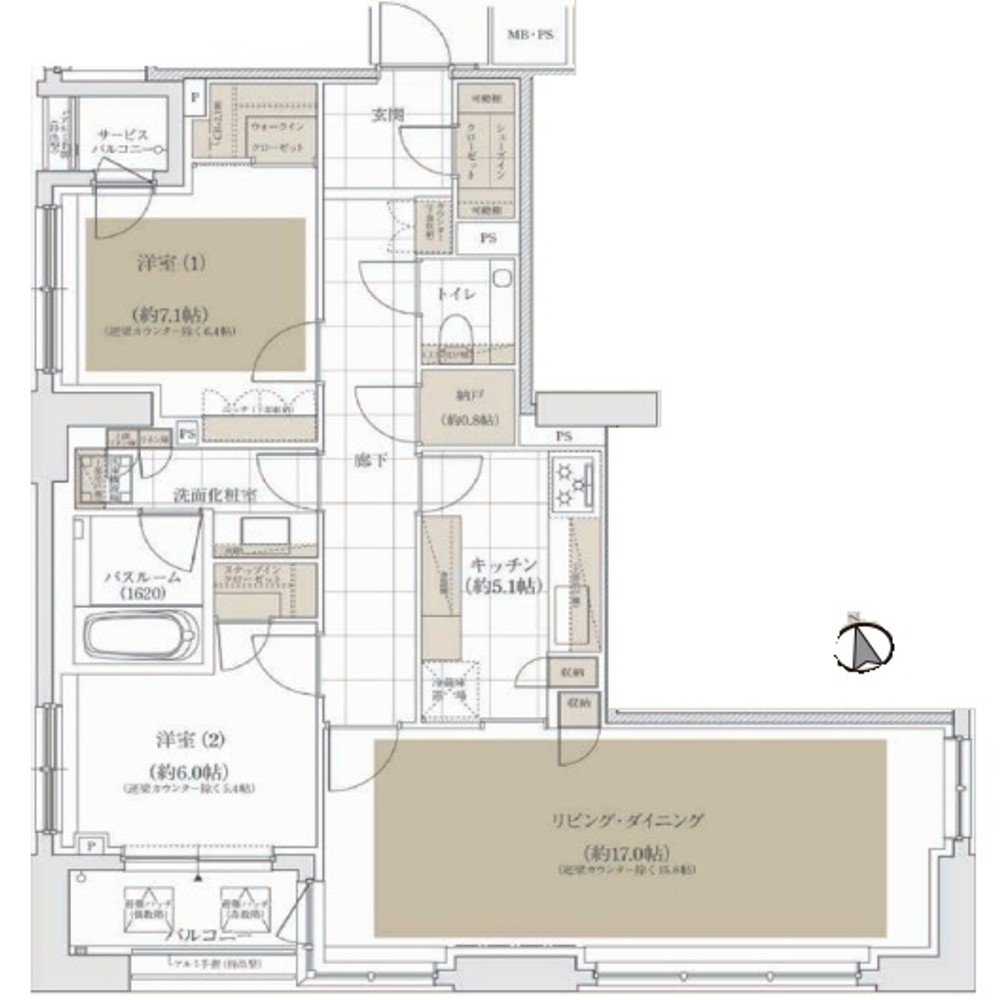
Floor Plan

Floorplan

Note: actual layout may differ slightly from this floorplan.

Location

3-3-9 Azabudai, Minato, Tokyo

Access

AzabuJuban Station

  • Toei Oedo Line Toei Oedo Line (5 min.)
  • Tokyo Metro Namboku Line Tokyo Metro Namboku Line (7 min.)

Roppongi Station

  • Tokyo Metro Hibiya Line Tokyo Metro Hibiya Line (8 min.)
  • Toei Oedo Line Toei Oedo Line (9 min.)

Roppongi-itchome Station

  • Tokyo Metro Namboku Line Tokyo Metro Namboku Line (9 min.)

Akabanebashi Station

  • Toei Oedo Line Toei Oedo Line (10 min.)

Kamiyacho Station

  • Tokyo Metro Hibiya Line Tokyo Metro Hibiya Line (11 min.)

Toranomon Hills Station

  • Tokyo Metro Hibiya Line Tokyo Metro Hibiya Line (17 min.)

Nogizaka Station

  • Tokyo Metro Chiyoda Line Tokyo Metro Chiyoda Line (17 min.)

ShibaKoen Station

  • Toei Mita Line Toei Mita Line (17 min.)

Onarimon Station

  • Toei Mita Line Toei Mita Line (17 min.)

Akasaka Station

  • Tokyo Metro Chiyoda Line Tokyo Metro Chiyoda Line (20 min.)

Tameike-sanno Station

  • Tokyo Metro Ginza Line Tokyo Metro Ginza Line (21 min.)
  • Tokyo Metro Namboku Line Tokyo Metro Namboku Line (21 min.)

Hiroo Station

  • Tokyo Metro Hibiya Line Tokyo Metro Hibiya Line (21 min.)

Request Information

* Required

Inquire Now

CLOSE

BACK

Atlas Azabudai - cover-photo
Atlas Azabudai
Atlas Azabudai
Atlas Azabudai
Atlas Azabudai
Atlas Azabudai
Atlas Azabudai
Atlas Azabudai - view
Atlas Azabudai - view
Atlas Azabudai - view
Atlas Azabudai
Atlas Azabudai
Atlas Azabudai
Atlas Azabudai
Atlas Azabudai
Atlas Azabudai
Atlas Azabudai
Atlas Azabudai
Atlas Azabudai
Atlas Azabudai
Atlas Azabudai - building
Atlas Azabudai - entrance
Atlas Azabudai - entrance
Atlas Azabudai - entrance
Atlas Azabudai
Atlas Azabudai
Atlas Azabudai
Atlas Azabudai - lobby
Atlas Azabudai - other
Atlas Azabudai