Skip to main content

The Parkremore Shirokanedai Sanchome 4F

JPY 769,900,000

Exchange rate data accurate as of 2026-05-15 00:00:04.
Apartment 3 1 214.57m²

Full skeleton renovation completed, offering a completely refreshed and modern living space.

The expansive living and dining area spans approximately 40 tatami mats, creating a bright and open atmosphere ideal for both relaxing and entertaining.

Key features include:

・Spacious 40-tatami LDK (Living, Dining, Kitchen)
・Shoe-in closet (SIC) for ample storage
・Two double-sink vanities for added convenience
・Three toilets and two bathrooms, ideal for larger households
・Southwest-facing orientation with triple-aspect windows, allowing excellent natural light throughout the day
・Two exclusive-use parking spaces (ground-level)

The property showcases a timeless classical-modern exterior, quietly positioned in the prestigious Minami-Aoyama area.

Additionally, the layout can be changed between a 3LDK and 4LDK at no extra cost, offering flexibility to suit your lifestyle needs.

Features

Property feature: pets

Pets

Property feature: recently renovated

Recently Renovated

Other features include:

Flooring, Parking, Storage

Property Information

Sale Status
For Sale
Price / m²
¥3,588,106
Repair Reserve Fund
JPY 27,900 / month
Management Fee
JPY 99,560 / month
Parking
Available; JPY 35,000 / month ~ JPY 50,000 / month
Pets
OK
Land Right
Freehold
Usage
Residential
Zoning
Category 1 low-rise exclusive residential zoning
Structure
Reinforced Concrete
Year Built
1987
Total Units
14
Floor No
4
Total Floors
4 storeys
Balcony Size
58 m²

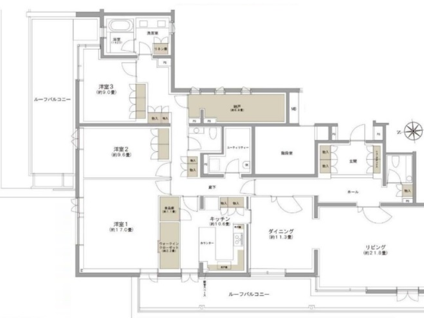
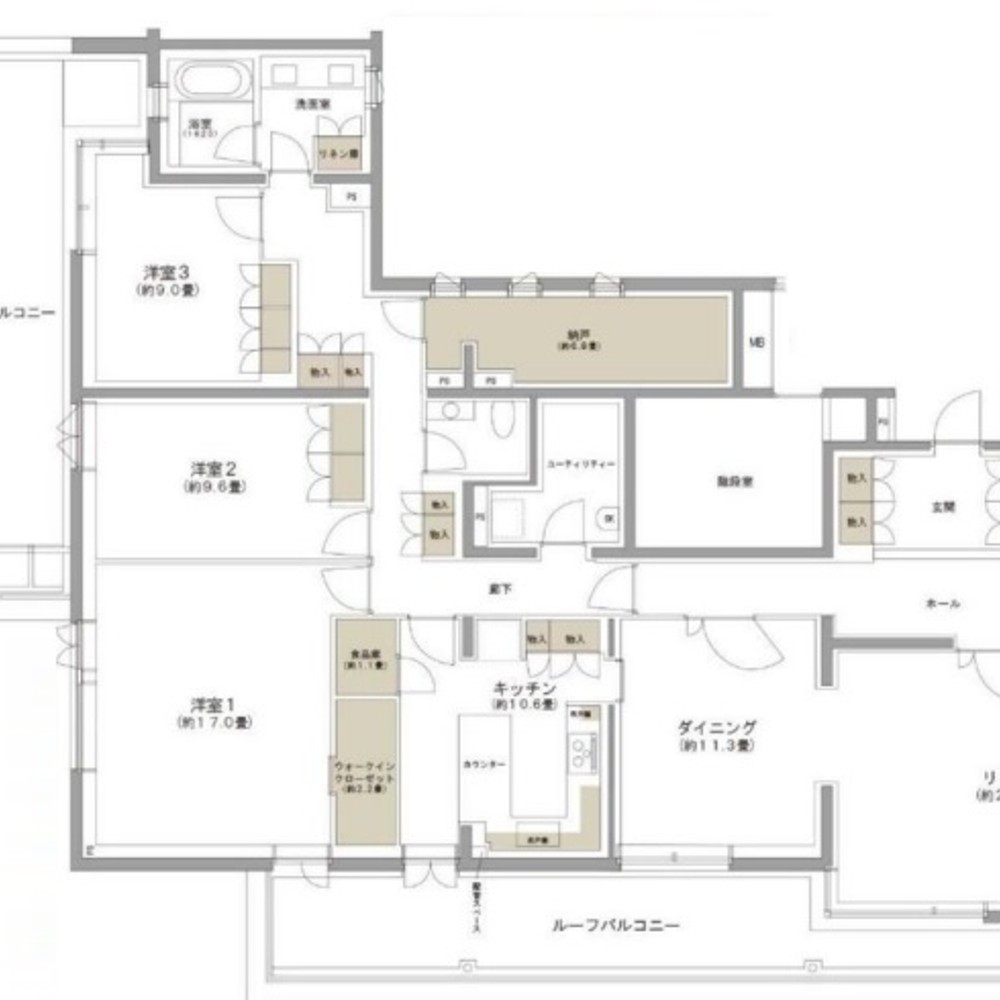
Floor Plan

Floorplan

Note: actual layout may differ slightly from this floorplan.

Location

3-5-17 Shirokanedai, Minato, Tokyo

Access

Shirokanedai Station

  • Tokyo Metro Namboku Line Tokyo Metro Namboku Line (4 min.)
  • Toei Mita Line Toei Mita Line (4 min.)

Takanawadai Station

  • Toei Asakusa Line Toei Asakusa Line (8 min.)

Request Information

* Required

Inquire Now

CLOSE

BACK

The Parkremore Shirokanedai Sanchome - cover-photo
The Parkremore Shirokanedai Sanchome - cg-imagery
The Parkremore Shirokanedai Sanchome - cg-imagery
The Parkremore Shirokanedai Sanchome
The Parkremore Shirokanedai Sanchome
The Parkremore Shirokanedai Sanchome
The Parkremore Shirokanedai Sanchome
The Parkremore Shirokanedai Sanchome - balcony
The Parkremore Shirokanedai Sanchome
The Parkremore Shirokanedai Sanchome
The Parkremore Shirokanedai Sanchome
The Parkremore Shirokanedai Sanchome
The Parkremore Shirokanedai Sanchome
The Parkremore Shirokanedai Sanchome - living
The Parkremore Shirokanedai Sanchome - kitchen
The Parkremore Shirokanedai Sanchome - kitchen
The Parkremore Shirokanedai Sanchome - bathroom
The Parkremore Shirokanedai Sanchome - powder-room
The Parkremore Shirokanedai Sanchome - building
The Parkremore Shirokanedai Sanchome - lobby
The Parkremore Shirokanedai Sanchome - courtyard